矿用混凝土喷射车
UPS-10ZT(E)

矿用混凝土喷射车

UPS-10ZT(E)矿用混凝土喷射车,是一款针对矿山矮小巷道混凝土喷射作业而设计研发的低矮紧凑型湿喷台车。广泛应用于不存在爆炸危险的金属与非金属矿山巷道、水工隧洞、地下建筑(军用与民用)、道路边坡湿喷支护喷射混凝土作业,弥补了臂架不能到达位置作业的空白。整机操作、维修简单,生产效率高。
  • 喷射能力:10m³/h
  • 出料高度:1m
  • 速凝剂泵形式:隔膜泵

产品介绍

产品图片

产品特点

1.采用手持式喷头进行喷浆作业,可实现单头、多头同时喷射工作的灵活切换。

2.钢性自行走底盘,体积小、重量轻,通行和转场灵活,转场速度快,50米电缆,大大提高了施工的效率。

3.具有喷射效率高,输送距离远,回弹率低,机件磨损小,使用寿命长,配件消耗少、对操作人员操作技术要求低等突出优点。

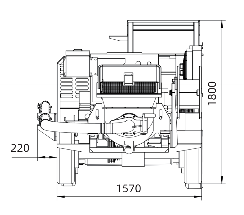
设备视图

设备参数

项目

参数值

外形尺寸(长×宽×高)

4000×1570×1800mm

整机重量

3060kg

发动机额定功率及转速

常柴15.5kW/2200rpm

电动机总功率

11kW

驱动形式、转向方式

后轮驱动,前轮转向

制动系统

行车:液压湿式制动

驻车:闭式弹簧制动,液压解除

最大行驶速度

11km/h

最大爬坡角度

14°

最小转弯半径

内侧:2100mm;外侧:4500mm

离地间隙

160mm

混凝土实际喷射能力

10m³/h

喷射混凝土最大骨料粒径

12mm

料斗容积

0.15m³

料斗上料高度

1000mm

喷浆操作方式

采用手持式喷头进行喷浆作业

速凝剂泵形式

隔膜泵

电缆规格

3×6+1×6mm²

电缆长度

50m

轮胎

矿用充气轮胎

因客户需求各异,参数设置有所差异,本公司对以上内容拥有最终解释权。如需最新资讯或产品定制,请联系客服人员:问题咨询及获取报价

产品询价

请填写详细的需求信息,会有专业的服务人员及时给您回复。

电话咨询
电话咨询0551-62530898
微信咨询
微信咨询